-
ワークプレイス構築事業
-
保管システム事業
-
ソーシャルバリュー事業
2026年04月10日
保管システム事業

本図書館の建物である三重県伊賀市の旧本庁舎(旧上野市庁舎)は、日本近代モダニズム建築家のひとり、坂倉準三氏により設計され、1964年に竣工、2018年に庁舎としての役割を終えました。2019年、伊賀市の有形文化財に指定され、改修により2025年に「SAKAKURA BASE」として、ホテルと交流施設がスタート。
その後、別の場所にあった旧伊賀市上野図書館より運営が引き継がれ、伊賀市中央図書館として2026年に開館となりました。
旧図書館の書庫では1984年から文祥堂の電動集密書架が使用されていました。移転にあたり、電動式からハンドル式へ「アップサイクル」を実施して生まれ変わることとなりました。
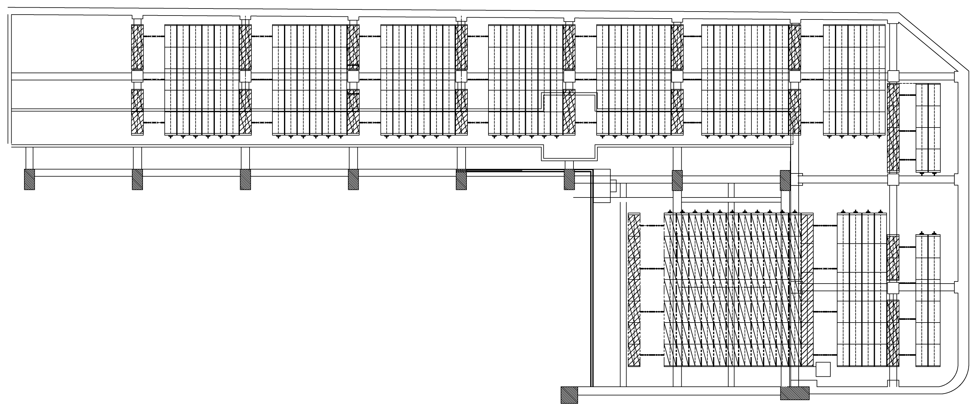
設計にあたっては、移転先の書庫の空間に合わせ、躯体の凹凸や配管を考慮しつつも、最大限に空間を生かすレイアウトで書架を設置。23万冊を超える収納量を確保することができました。
生まれ変わった閲覧スペースは、ゆったりとした空間に木製のインテリアが配置され、地域の皆様に開かれた開放的な空間となっています。
建築の再生とともに、集密書架も環境負荷とコストを抑えて再生されました。これからも地域の皆様に愛される図書館に寄り添い、蔵書の保管をサポートしていきます。
| 所在地 | 三重県伊賀市上野丸之内116 |
|---|---|
| 納入年 | 1984年(旧伊賀市上野図書館)電動式移動棚エレコンパックリード |
| 移設・アップサイクル年 | 2026年2月 |
| 設置面積 | 閉架書庫 約400㎡ |
| 納入品目 | ハンドル式集密書架コンパックルneo |
| 収納物 | 書籍、雑誌、新聞等 |
| 収納量 | 約230,000冊 |
閉架書庫:旧上野市図書館から書架を移設
書庫平面図 従来よりゆったりしたスペースに十分な収納量を確保
1984年に納入した電動式集密書架。棚部材を流用し、移設。操作機構を入れ替え、アップサイクルを実施
廃棄部材も大幅に減らし、環境にやさしく、コストも削減
室内の配管、梁、機器類にあわせ、緻密に設計、配置
光あふれる1階閲覧室
これからも地域のみなさまに愛される施設として再生されました